產品目錄
蒸汽流量計
渦街流量計
孔板流量計
壓縮空氣流量計
氣體流量計
熱式氣體質量流量計
旋進旋渦流量計
金屬管浮子流量計
氣體羅茨流量計
電磁流量計
渦輪流量計
橢圓齒輪流量計
水流量計
液體流量計
超聲波流量計
磁翻板液位計
浮子液位計
浮球液位計
玻璃管液位計
雷達液位計
超聲波液位計
投入式液位計
壓力變送器
差壓變送器
液位變送器
溫度變送器
熱電偶
熱電阻
雙金屬溫度計
相關產品
聯系我們
聯系電話:13655235852
服務熱線:0517-86801009
公司傳真:0517-86801007
公司郵箱:1464856260@qq.com
公司地址:江蘇省金湖縣理士大道61號
關于壓縮空氣流量計在煙氣脫硝裝置中的運行及改進建議
摘要:煙氣脫硝技術是一項應用于含有多氮氧化物和硫氧化物的煙氣凈化工業技術。介紹了煙氣脫硝裝置應用于壓縮空氣流量計煙氣脫硝的設計、安裝及運行情況,為壓縮空氣流量計煙氣凈化的設計、改造和使用管理提供了借鑒經驗。
1 壓縮空氣流量計
陜西延長石油集團延安煤油氣綜合利用項目180萬 t/a 甲醇裝置是以天然氣和煤基合成氣為原料,采用 DPT 壓縮空氣流量計**技術及 JMC 低壓甲醇技術生產滿足要求的 MTO 級甲醇產品和氫氣產品。
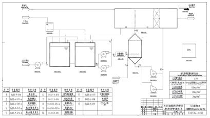
壓縮空氣流量計是一個的矩形絕熱結構,包括輻射段、對流段和鼓 / 引風機系統等。輻射段包含裝有催化劑的垂直壓縮空氣流量計爐管 ;對流段采用水平“一”字型布置結構,沿煙道氣流方向分別串聯8個對流段換熱模塊(見圖1)。煙氣進每段盤管的溫度分別是 ~1 050℃、~956℃、~887℃、~801℃、~685℃、~550℃、~542℃、409℃,好終溫度約為137℃的煙氣經引風機從煙囪排入大氣。
在壓縮空氣流量計中發生的主要反應如下 :

2 煙氣脫硝裝置
采用國內某公司的選擇性催化還原法(SCR)脫硝裝置,按脫硝裝置入口 ** x 濃度120mg/m 3 ,出口 ** x 排放濃度不大于50mg/m 3 進行設計和設備配置,SCR 反應器按水平布置(見圖1),在壓縮空氣流量計好大工況下脫硝效率不小于58.34%。
2.1 技術條件及規格
2.1.1 脫硝裝置入口煙氣參數
脫硝裝置入口煙氣參數見表1。
2.1.2 脫硝系統的性能指標
脫硝效率 ≥58.34% ;氨逃逸 ≤2.5mg/m 3 ;SO 2 /SO 3 轉化率 ≤1% ;脫硝系統煙道漏風率<0.1% ;系統壓差 ≤550Pa ;系統連續運行溫度 320~425℃ ;煙氣溫降 ≤3℃ ;20% 的氨水耗量 ≤94.5kg/h。

2.2 SCR脫硝工藝系統
(1)SCR 脫硝工藝原理 :是指在320~420℃及催化劑的作用下,還原劑(氨氣)與煙氣中的氮氧化物反應生成無害的氮和水,從而去除煙氣中的 ** x 。選擇性是指還原劑 NH 3 和煙氣中的 ** x 發生還原反應,而不與煙氣中的氧氣發生反應。

(2)脫硝效率定義:脫硝率 =(C1-C2)/C1×100%,式中:C1/C2為脫硝裝置入口 / 出口處煙氣中 ** x 含量(mg/ m 3 )。
(3)SCR 的組成,SCR 工藝系統主要由煙氣及反應器系統、催化劑、氨噴射 - 混合系統(AIG)、還原劑存儲及供應系統、氨水汽化系統、電氣系統和熱控系統等組成。
(4)SCR 工藝流程(見圖2):氨水槽車運輸→卸氨泵卸料→儲罐儲存→高倍流量循環模塊(HFD)→SCR 區計量分配模塊(MDM)→噴槍裝置→汽化器 ;氣化的氨和稀釋空氣混合,通過噴氨格柵噴入 SCR 反應器上游的煙氣中 ;充分混合后的還原劑和煙氣在 SCR 反應器中催化劑的作用下發生反應,去除 ** x 。
3 脫硝裝置的調試及72h試運行情況
3.1 調試內容
當壓縮空氣流量計負荷或爐膛出口的 ** x 濃度變化時,調整送入煙道的氨水量和空氣量,以滿足壓縮空氣流量計不同負荷或** x 變化的要求。

計量分配模塊中安裝有氨水流量計和氨水調節閥,通過流量計的讀數來控制調節閥的開度,從而控制每臺噴槍需要的氨水溶液的流量。來自廠區空壓站的壓縮空氣經過調壓處理后通向噴槍。在每條壓縮空氣支路管中也設有調節閥及壓力表等裝置,用于調整每只噴槍霧化所需的壓縮空氣用量。
3.2 脫硝裝置72h試運行
2018年12月18-20日脫銷裝置進行了72h 試運行。壓縮空氣流量計負荷平均值83.7% 時,脫硝效率平均值為63.1%,大于性能指標58.34%,脫硝效率合格 ;20% 的氨水耗量平均值為80.7,小于性能指標94.5kg/h,氨水耗量指標合格 ;氨逃逸平均值為0.64×10 -6 小于性能指標3×10 -6 ,氨逃逸指標合格 ;脫硝前 ** x 平均值為 229.3mg/m 3 ,脫硝后 ** x 平均值為 84.61mg/m 3 ;系統壓差平均值為430Pa,小于性能指標550Pa。雖然脫硝裝置72h 試運行主要性能指標合格,但是壓縮空氣流量計負荷好高僅為85.9%,沒有達到好大工況 ;脫硝前 ** x 平均值為 229.3mg/m 3 未達到設計值120mg/m 3 ,導致脫硝后 ** x 平均值為 84.61mg/m 3 ,大于設計值50mg/m 3 。
4 長期運行后存在問題、原因分析及改進建議
脫硝裝置經過三個多月的試運行,系統壓差升至2.42KPa,是性能指標550Pa 的4倍多,導致壓縮空氣流量計負荷無法提高,經停車檢查發現是因為壓縮空氣流量計保溫材料脫落堵塞了脫硝裝置波紋板式催化劑床層。
壓縮空氣流量計保溫材料脫落的可能存在的主要原因為 :
1)保溫材料及其施工方法不符合要求 ;
2)壓縮空氣流量計升 / 降溫速率大 ;
3)壓縮空氣流量計停車后引風機未做相應調整,導致風量大。因此在壓縮空氣流量計設計階段要選擇符合要求的保溫材料,并規范嚴把施工質量 ;壓縮空氣流量計開停車過程中要嚴格控制升降溫速率、負壓及引風機風量 ;每次開車前要及時檢查催化劑床層,發現堵塞物及時清理。
5 結束語
介紹了煙氣脫硝裝置應用于壓縮空氣流量計煙氣脫硝的設計、安裝及運行情況,針對運行中存在的問題,提出合理可行的改進建議,供國內外壓縮空氣流量計煙氣凈化的設計、改造和使用管理時參考。
1 壓縮空氣流量計
陜西延長石油集團延安煤油氣綜合利用項目180萬 t/a 甲醇裝置是以天然氣和煤基合成氣為原料,采用 DPT 壓縮空氣流量計**技術及 JMC 低壓甲醇技術生產滿足要求的 MTO 級甲醇產品和氫氣產品。
壓縮空氣流量計是一個的矩形絕熱結構,包括輻射段、對流段和鼓 / 引風機系統等。輻射段包含裝有催化劑的垂直壓縮空氣流量計爐管 ;對流段采用水平“一”字型布置結構,沿煙道氣流方向分別串聯8個對流段換熱模塊(見圖1)。煙氣進每段盤管的溫度分別是 ~1 050℃、~956℃、~887℃、~801℃、~685℃、~550℃、~542℃、409℃,好終溫度約為137℃的煙氣經引風機從煙囪排入大氣。
在壓縮空氣流量計中發生的主要反應如下 :

2 煙氣脫硝裝置
采用國內某公司的選擇性催化還原法(SCR)脫硝裝置,按脫硝裝置入口 ** x 濃度120mg/m 3 ,出口 ** x 排放濃度不大于50mg/m 3 進行設計和設備配置,SCR 反應器按水平布置(見圖1),在壓縮空氣流量計好大工況下脫硝效率不小于58.34%。
2.1 技術條件及規格
2.1.1 脫硝裝置入口煙氣參數
脫硝裝置入口煙氣參數見表1。
2.1.2 脫硝系統的性能指標
脫硝效率 ≥58.34% ;氨逃逸 ≤2.5mg/m 3 ;SO 2 /SO 3 轉化率 ≤1% ;脫硝系統煙道漏風率<0.1% ;系統壓差 ≤550Pa ;系統連續運行溫度 320~425℃ ;煙氣溫降 ≤3℃ ;20% 的氨水耗量 ≤94.5kg/h。

2.2 SCR脫硝工藝系統
(1)SCR 脫硝工藝原理 :是指在320~420℃及催化劑的作用下,還原劑(氨氣)與煙氣中的氮氧化物反應生成無害的氮和水,從而去除煙氣中的 ** x 。選擇性是指還原劑 NH 3 和煙氣中的 ** x 發生還原反應,而不與煙氣中的氧氣發生反應。

(2)脫硝效率定義:脫硝率 =(C1-C2)/C1×100%,式中:C1/C2為脫硝裝置入口 / 出口處煙氣中 ** x 含量(mg/ m 3 )。
(3)SCR 的組成,SCR 工藝系統主要由煙氣及反應器系統、催化劑、氨噴射 - 混合系統(AIG)、還原劑存儲及供應系統、氨水汽化系統、電氣系統和熱控系統等組成。
(4)SCR 工藝流程(見圖2):氨水槽車運輸→卸氨泵卸料→儲罐儲存→高倍流量循環模塊(HFD)→SCR 區計量分配模塊(MDM)→噴槍裝置→汽化器 ;氣化的氨和稀釋空氣混合,通過噴氨格柵噴入 SCR 反應器上游的煙氣中 ;充分混合后的還原劑和煙氣在 SCR 反應器中催化劑的作用下發生反應,去除 ** x 。
3 脫硝裝置的調試及72h試運行情況
3.1 調試內容
當壓縮空氣流量計負荷或爐膛出口的 ** x 濃度變化時,調整送入煙道的氨水量和空氣量,以滿足壓縮空氣流量計不同負荷或** x 變化的要求。

計量分配模塊中安裝有氨水流量計和氨水調節閥,通過流量計的讀數來控制調節閥的開度,從而控制每臺噴槍需要的氨水溶液的流量。來自廠區空壓站的壓縮空氣經過調壓處理后通向噴槍。在每條壓縮空氣支路管中也設有調節閥及壓力表等裝置,用于調整每只噴槍霧化所需的壓縮空氣用量。
3.2 脫硝裝置72h試運行
2018年12月18-20日脫銷裝置進行了72h 試運行。壓縮空氣流量計負荷平均值83.7% 時,脫硝效率平均值為63.1%,大于性能指標58.34%,脫硝效率合格 ;20% 的氨水耗量平均值為80.7,小于性能指標94.5kg/h,氨水耗量指標合格 ;氨逃逸平均值為0.64×10 -6 小于性能指標3×10 -6 ,氨逃逸指標合格 ;脫硝前 ** x 平均值為 229.3mg/m 3 ,脫硝后 ** x 平均值為 84.61mg/m 3 ;系統壓差平均值為430Pa,小于性能指標550Pa。雖然脫硝裝置72h 試運行主要性能指標合格,但是壓縮空氣流量計負荷好高僅為85.9%,沒有達到好大工況 ;脫硝前 ** x 平均值為 229.3mg/m 3 未達到設計值120mg/m 3 ,導致脫硝后 ** x 平均值為 84.61mg/m 3 ,大于設計值50mg/m 3 。
4 長期運行后存在問題、原因分析及改進建議
脫硝裝置經過三個多月的試運行,系統壓差升至2.42KPa,是性能指標550Pa 的4倍多,導致壓縮空氣流量計負荷無法提高,經停車檢查發現是因為壓縮空氣流量計保溫材料脫落堵塞了脫硝裝置波紋板式催化劑床層。
壓縮空氣流量計保溫材料脫落的可能存在的主要原因為 :
1)保溫材料及其施工方法不符合要求 ;
2)壓縮空氣流量計升 / 降溫速率大 ;
3)壓縮空氣流量計停車后引風機未做相應調整,導致風量大。因此在壓縮空氣流量計設計階段要選擇符合要求的保溫材料,并規范嚴把施工質量 ;壓縮空氣流量計開停車過程中要嚴格控制升降溫速率、負壓及引風機風量 ;每次開車前要及時檢查催化劑床層,發現堵塞物及時清理。
5 結束語
介紹了煙氣脫硝裝置應用于壓縮空氣流量計煙氣脫硝的設計、安裝及運行情況,針對運行中存在的問題,提出合理可行的改進建議,供國內外壓縮空氣流量計煙氣凈化的設計、改造和使用管理時參考。
相關資訊
- 壓縮氣體流量計如何正確選型
- 壓縮空氣流量計精度等級
- 壓縮空氣流量計如何校正
- 壓縮空氣流量計測量范圍
- 壓縮空氣流量計測量偏低如何解決
- 高溫壓縮空氣流量計的作用
- 壓縮空氣流量計的組成結構
- 壓縮空氣流量計如何清零
- 壓縮空氣流量計使用說明書
- 壓縮空氣流量計有哪些優缺點
- 壓縮空氣流量計量程怎么選
- 壓縮空氣流量計使用前的校驗方法
- 壓縮空氣流量計有哪些類型
- 如何正確選擇壓縮空氣流量計
- 壓縮空氣流量計安裝規范
- 壓縮空氣流量計技術要求
- 壓縮空氣流量計的結構原理圖
- 壓縮空氣流量計選型參數
- 壓縮空氣流量計安裝位置
- 壓縮空氣流量計顯示不準的處理方法
- 壓縮空氣流量計規格型號
- 壓縮空氣流量計接電后不顯示處理辦法
- 壓縮空氣流量計怎么選
- 壓縮空氣流量計的作用及應用領域
- 壓縮空氣流量計設置參數
- 壓縮空氣流量計調試說明
- 壓縮空氣流量計故障現象
- 壓縮空氣流量計的安裝要求
- 法蘭式壓縮空氣流量計選型
- 渦街式壓縮空氣流量計原理

