產品目錄
蒸汽流量計
渦街流量計
孔板流量計
壓縮空氣流量計
氣體流量計
熱式氣體質量流量計
旋進旋渦流量計
金屬管浮子流量計
氣體羅茨流量計
電磁流量計
渦輪流量計
橢圓齒輪流量計
水流量計
液體流量計
超聲波流量計
磁翻板液位計
浮子液位計
浮球液位計
玻璃管液位計
雷達液位計
超聲波液位計
投入式液位計
壓力變送器
差壓變送器
液位變送器
溫度變送器
熱電偶
熱電阻
雙金屬溫度計
相關產品
聯系我們
聯系電話:13655235852
服務熱線:0517-86801009
公司傳真:0517-86801007
公司郵箱:1464856260@qq.com
公司地址:江蘇省金湖縣理士大道61號
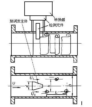
氨氣流量計工作原理圖
1)氨氣流量計結構:
氨氣流量計=傳感器+轉換器

傳感器:
旋渦發生體(阻流體)、檢測元件、儀表表體
轉換器:
前置放大器、濾波整形電路、D/A轉換電路、輸出接口電路、端子、支架和防護罩


2)氨氣流量計基本原理
氨氣流量計原理:
流體流經阻擋體或者是特制的元件時,產生了流動振蕩,通過測定其振蕩頻率來反映通過的流量。
渦街產生原理:
當流體流動受到一個垂直于流動方向的非流線形柱體的阻礙時,柱體的下游兩側會發生明顯的旋渦,成為卡門渦列,渦列的形成與流體雷諾數有關。

下一篇:氨氣流量計顯示數據偏差的因素分析
上一篇:氨氣流量計的作用及應用
相關資訊
- 脫硝氨氣流量計安裝位置圖
- 氨氣流量計的選擇
- 氨氣流量計調節方法
- 氨氣流量計接線說明
- 氨氣流量計怎么看流量
- 氨氣流量計顯示數據偏差的因素分析
- 氨氣流量計工作原理圖
- 氨氣流量計的作用及應用
- 氨氣流量計常見故障處理
- 氨氣流量計安裝方法
- 氨氣流量計校準方法
- 氨氣流量計的量程怎么選
- 電廠用氨氣流量計不準什么原因
- 氨氣流量計零位調整
- 氨氣流量計校準目的與檢定方式分析
- 氨氣流量計波動大原因分析
- 氨氣流量計如何正確選型
- 氨氣流量計怎么清洗
- 氨氣流量計在測量飽和蒸汽中對于生產效率的提升
- 正確理解氨氣計量表安裝要求及需要了解的相關注意事項
- 氨氣流量測量儀表
- 分析氨氣流量計自動化儀表控制系統的應用
- 氨氣流量測量儀表,氨氣流量計價格
- 氨氣流量計廠家
- 測量液氨的流量計,氨氣流量計量表
- 氨氣流量計量表,鍋爐脫硝氨氣流量計
- 測氨氣流量用什么流量計
- 測氨氣流量計,氨氣流量計選型
- 氨氣流量表價格
- 測氨氣流量計

